Plan A-Frame 120 m² : modèle complet, façade + RDC + étage
Découvrez le plan A-Frame 120 m² : façade technique, rez-de-chaussée optimisé et étage sous rampant. Un modèle spacieux et lumineux, idéal pour la famille.
PLAN & KITS
Nathalie Othats Lagreou
11/20/20252 min temps de lecture


Le modèle A-Frame 120 m² — Le plan familial par excellence
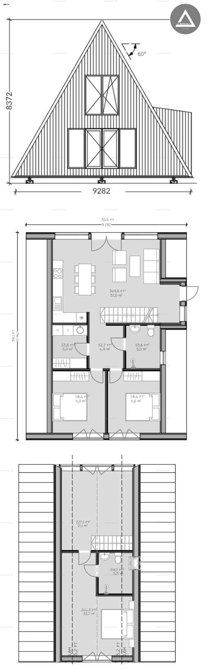
Le modèle A-Frame 120 m² représente l’équilibre parfait entre esthétisme architectural, optimisation de l’espace et confort moderne. Avec sa façade iconique à 60°, son volume intérieur généreux et ses trois chambres dont une suite parentale potentielle à l’étage, ce plan est un modèle recherché pour ceux qui veulent une maison chaleureuse et fonctionnelle.
🔷 1. Une façade emblématique et ultra-lumineuse
La façade triangulaire de 8,37 m de haut et 9,28 m de large reprend les codes les plus appréciés de l’architecture en A-Frame :
pente de toit à 60°, idéale pour la résistance et le climat
bardage bois vertical renforçant la verticalité
grandes ouvertures qui inondent l’intérieur de lumière
ajout d’un volume latéral pour augmenter la surface utile
🔷 2. Rez-de-chaussée spacieux : 32,5 m² de pièce de vie
Le RDC accueille une living-room / salon / salle à manger XXL, intégrant :
un grand espace de vie de 32,5 m²
une cuisine moderne en L
deux chambres de 11 m²
deux salles d’eau de 5 m²
un couloir central avec escalier ergonomique
une excellente luminosité grâce aux doubles portes-fenêtres
Ce niveau est idéal pour une famille, une résidence secondaire ou une location saisonnière.
🔷 3. Étage sous rampants : une suite parentale + espace ouvert
L’étage propose une configuration rare pour une A-Frame :
une grande chambre de 22,7 m²
un espace ouvert polyvalent de 21 m²
une salle de bains de 5,5 m²
une circulation centrale fluide
une hauteur confortable au centre
Cet étage maximise le charme des rampants tout en restant pleinement exploitable.
🔷 4. Le plan parfait pour qui ?
Ce modèle est idéal si vous cherchez :
✔ une maison A-Frame de grande surface
✔ au moins 3 chambres
✔ un intérieur très lumineux
✔ une maison adaptée à 4 à 6 personnes
✔ une esthétique moderne + traditionnelle
✔ un plan optimisé pour vivre à l’année ou louer
🔷 5. Les points forts du modèle 120 m²
⭐ Surface confortable
⭐ Suite parentale possible
⭐ 3 vraies chambres
⭐ 2 salles de bains
⭐ Esthétique moderne avec extension latérale
⭐ Excellente luminosité
⭐ Plan équilibré et fonctionnel
🔥 Plan A-Frame 120 m² : modèle complet, façade + RDC + étage
👉 📌 Accéder directement au plan complet (façade + RDC + étage) :
Télécharger le plan ici
PLAN COMPLET – 120 m²
Façade + Rez-de-chaussée + 1er étage
© maisonena.com – Reproduction interdite
MAISONENA
Le média créatif dédié aux maisons A-Frame, aux projets architecturaux alternatifs et à la vie sous rampant.
Inspiration, tutoriels, formation et magazine indépendant.
Support & Contact
© 2025 MAISONENA — All rights reserved.
Suivez nos actualités
Restez informé(e) des nouveautés, conseils et projets MAISONENA
Pour toute question concernant le magazine, les formations, le blog ou les projets A-Frame.
Liens utiles
• Blog
• Abonnement
• Formacraft
• Jeu Noël
• Projet AFrameDesignerAI
• Mentions légales
• Conditions générales
